Les appartements de Type 2

Les appartements de Type 2

Les plus beaux appartements sont toujours les premiers vendus



Appartement T2 - LOT N°A105

#

Typologie : T2
Surface habitable : 39,47m2
Surface annexe : Terrasse 8,79m2
Stationnements : Parking
Exposition : Sud/Est
Plan

Appartement T2 - LOT N°A106

#

Typologie : T2
Surface habitable : 38,78m2
Surface annexe : Terrasse 8,59m2
Stationnements : Parking
Exposition : Sud/Est
Plan

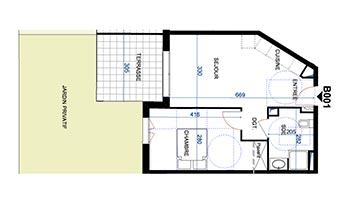
Appartement T2 - LOT N°B001

#

Typologie : T2
Surface habitable : 39,85m2
Surface annexe : Terrasse 9,20m2 + Jardin 26,54m2
Stationnements : Parking
Exposition : Sud
Plan

Appartement T2 - LOT N°B005

#

Typologie : T2
Surface habitable : 40,75m2
Surface annexe : Terrasse 13,31m2 + Jardin 24,53m2
Stationnements : Parking
Exposition : Est
Plan

Appartement T2 - LOT N°B105

#

Typologie : T2
Surface habitable : 40,75m2
Surface annexe : Terrasse 13,31m2
Stationnements : Parking
Exposition : Est
Plan